Đề thi học kì 1 môn Công nghệ lớp 11 trường THCS&THPT Lương Hòa, Long An năm học 2015 - 2016
Đề thi học kì 1 môn Công nghệ lớp 11
Đề thi học kì 1 môn Công nghệ lớp 11 trường THCS&THPT Lương Hòa, Long An năm học 2015 - 2016 là tài liệu học tập hay, kiểm tra lại kiến thức Công nghệ đã học trong chương trình học kì 1 lớp 11, giúp các bạn học sinh chuẩn bị sẵn sàng cho các bài thi, bài kiểm tra sắp tới hiệu quả.
Đề thi học kì 1 môn Công nghệ lớp 11 trường THCS&THPT Đăng Khoa, TP. Hồ Chí Minh năm học 2016 - 2017
Đề thi học kì 1 môn Công nghệ lớp 11 trường THPT Hùng Vương, Bình Thuận năm học 2015 - 2016
Đề thi học kì 1 môn Toán lớp 11 trường THPT Xuân Trường C, Nam Định năm học 2015 - 2016
| TRƯỜNG THCS& THPT LƯƠNG HOÀ Đề chính thức |
Thi kiểm tra HKI Môn Công Nghệ 11 |
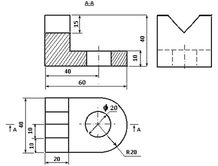
Cho hình chiếu trục đo của Giá chữ V có kích thước tính theo kích thước hình thoi, mỗi hình thoi biểu diễn một hình vuông có cạnh bằng 10 mm.

- Xác định các kích thước cơ sở: Dài, rộng, cao, đường kính lỗ tròn, bán kính cung tròn (1 điểm)
- Vẽ khung tên, khung bản vẽ, điền đầy đủ nội dung vào khung tên (vẽ ở mặt sau). (1 điểm)
- Vẽ hình chiếu đứng, hình chiếu bằng, hình chiếu cạnh, ghi kích thước của Giá chữ V (4 điểm)
- Vẽ hình cắt 1 nữa của Giá chữ V (1 điểm)
- Hình chiếu phối cảnh dùng để làm gì? (1 điểm)
- Nêu công dụng bản vẽ chi tiết và bản vẽ lắp? (1 điểm)
- Khái niệm bản vẽ xây dựng, bản vẽ nhà có các hình biểu diễn nào? (1 điểm)
Đáp án đề thi học kì 1 môn Công nghệ lớp 11
Câu 1: Các kích thước cơ sở: Chiều dài: 60, chiều rộng: 40, chiều cao: 40, đường kính lỗ tròn: 20, bán kính cung tròn: 20 (1 điểm. Sai, thiếu 1 kích thước -0,5 điểm)
Câu 2: Vẽ đúng khung tên, khung bản vẽ, điền nội dung (1 điểm. Sai nét, sai kích thước, thiếu nét, thiếu kích thước -0,5 điểm/ lỗi)
Câu 3: Vẽ 3 hình chiếu, ghi kích thước (4 điểm. Sai nét, sai kích thước, thiếu nét, thiếu kích thước -0,5 điểm/ lỗi)

Câu 4: Kết hợp sau khi vẽ câu 3 (1 điểm. Sai nét -0,5 điểm)

Câu 5: (1 điểm. Sai, thiếu 1 ý -0,5 điểm)
Ứng dụng hình chiếu phối cảnh: HCPC thường đặt bên cạnh các hình chiếu vuông góc trong các bản vẽ kiến trúc và xây dựng để biểu diễn các công trình có kích thước lớn như nhà cửa, cầu đường, đê đập, ...
Câu 6: (1 điểm. Sai, thiếu 1 ý -0,5 điểm)
- Công dụng bản vẽ chi tiết: Dùng để chế tạo và kiểm tra chi tiết
- Công dụng bản vẽ lắp: Dùng để lắp ráp các chi tiết
Câu 7: (1 điểm. Sai, thiếu 1 ý -0,5 điểm)
- Khái niệm bản vẽ xây dựng: Gồm bản vẽ các công trình xây dựng như nhà cửa, cầu đường, bến cảng, ...
- Các hình biểu diễn bản vẽ nhà gồm mặt bằng, mặt đứng và hình cắt.