Giải SBT Toán 6 bài 3 Chu vi và diện tích của một số hình trong thực tiễn
Giải SBT Toán 6 bài 3 Chu vi và diện tích của một số hình trong thực tiễn sách Chân trời sáng tạo được VnDoc biên soạn lời giải chi tiết cho từng bài tập. Thông qua các Đáp án dưới đây, các em học sinh đối chiếu với đáp án của mình đã làm. Mời các em cùng theo dõi chi tiết.
>> Bài trước: Giải SBT Toán 6 bài 2 Hình chữ nhật - Hình thoi - Hình bình hành - Hình thang cân
Chu vi và diện tích của một số hình trong thực tiễn
Giải SBT Toán 6 tập 1 trang 75 Bài 1
Tính chu vi và diện tích của hình bên, biết AB = AD = 4 cm, BC = CD = 2 cm, các góc B và D đều là góc vuông

Đáp án
Chu vi của hình là:
P = AB + BC + CD + DA = 4 + 2 + 2 + 4 = 12 (cm)
Diện tích của hình là:
\(S = S_{\Delta ABC} + S_{\Delta ADC} = \frac{1}{2}AB.BC + \frac{1}{2}AD.DC=\frac{1}{2}.4.2 + \frac{1}{2}.4.2 = 8(cm^{2})\)
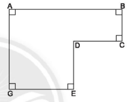
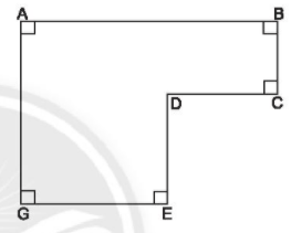
Giải SBT Toán 6 tập 1 trang 75 Bài 2
Tính chu vi và diện tích của hình bên, biết AB = 7 cm, BC = 2 cm, CD = 3 cm và DE = 3 cm

Đáp án
Ta có: GE = AB - CD = 7 - 3 = 4 (cm)
AG = BC + DE = 2 + 3 = 5 (cm)
Chu vi của hình là:
P = AB + BC + CD + DE + EG + GA = 7 + 2 + 3 + 3 + 4 + 5 = 24 (cm)
Phân chia thành 2 hình chữ nhật

Khi đó ta có diện tích của hình là:
S = 5.4 + 3.2 = 26 (cm2)
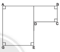
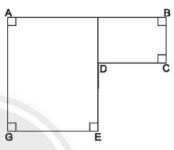
Giải SBT Toán 6 tập 1 trang 75 Bài 3
Tính chu vi của hình bên, biết BCDE là hình chữ nhật có diện tích 135m2, BC = 15 m, ABGK là hình chữ nhật có diện tích 180 m2, BE = EG.

Đáp án
BE.EC = 135 nên BE = 135 : 15 = 9 (m)
Suy ra EG = BE = 9 m và AK = BG = 18 m
AB.AK = 180 nên AB = 180 : 18 = 10 (m)
Suy ra KG = AB = 10 m
Chu vi cần tìm là:
P = 10 + 15 + 9 + 15 + 9 + 10 + 18
= 86 (m)
Giải SBT Toán 6 tập 1 trang 75 Bài 4
Một mảnh vườn hình chữ nhật có chiều dài 40 m, chiều rộng 30 m với lối đi hình bình hành rộng 2 m (xem hình dưới). Tính diện tích phần mảnh vườn không tính lối đi.

Đáp án
Diện tích của cả mảnh vườn là:
40.30 = 1200 (cm2)
Diện tích lối đi là:
2.30 = 60 (cm2)
Vậy diện tích phần mảnh vườn không tính lối đi là:
1200 - 60 = 1140 (cm2)
Giải SBT Toán 6 tập 1 trang 76 Bài 5
Khu đậu xe ô tô của một cửa hàng có dạng hình chữ nhật với chiều dài 14 m, chiều rộng 10 m. Trong đó, một nửa khu vực dành cho quay đầu xe, hai góc tam giác để trồng hoa và phần còn lại chia đều cho bốn chỗ đậu xe ô tô (xem hình)

a) Tính diện tích chỗ đậu xe dành cho một ô tô.
b) Tính diện tích dành cho đậu xe và quay đầu xe.
Đáp án
a) Diện tích mỗi chỗ đậu xe là: 3.5 = 15 (m2)
b) Diện tích hình chữ nhật là: 10.14 = 140 (m2)
Diện tích phần trồng hoa là: 2.5 = 10 (m2)
Diện tích cần tìm là: 140 - 10 = 130 (m2)
Giải SBT Toán 6 tập 1 trang 77 Bài 6
Tính diện tích dành cho đậu xe và quay đầu xe.

Đáp án
Ta có:
BE = 2.OB = 6 cm; CG = 2.OG = 8 cm
Diện tích hình thoi BCEG là:
\(\frac{1}{2}BE.CG = 24 (cm^{2})\)
Diện tích hình thang ABCD là:
\(\frac{1}{2}(AB + CD).OC = \frac{1}{2}(6 + 12).4 = 36 (cm^{2})\)
Diện tích cần tìm: 24 + 36 = 60 (cm2)
>> Bài tiếp theo: Giải SBT Toán 6 Bài tập cuối Chương 3 Chân trời sáng tạo
Trên đây là toàn bộ Đáp án Giải SBT Toán 6 bài 3 Chu vi và diện tích của một số hình trong thực tiễn Chân trời sáng tạo để các em học sinh ôn tập củng cố các dạng bài tập tính chu vi diện tích các hình.
Các em học sinh tham khảo thêm Toán lớp 6 Cánh Diều và Toán lớp 6 Kết nối tri thức. Đáp án các môn sách mới chương trình GDPT lớp 6 liên tục được VnDoc cập nhật, các bạn cùng theo dõi nhé.
Để lên kế hoạch bài dạy, chuẩn bị cho các bài học trên lớp cho chương trình sách mới lớp 6 GDPT đạt kết quả cao. Các thầy cô tham khảo các nhóm mới lớp 6 sau đây. Đồng thời, các em học sinh tham khảo để chuẩn bị các bài giải sách mới đạt kết quả cao.
Tất cả các tài liệu đề miễn phí, các em học sinh cùng các thầy cô có thể tải về dễ dàng. Rất mong được sự ủng hộ nhiệt tình của các thầy cô và các bạn.