Giao diện mới của VnDoc Pro: Dễ sử dụng hơn - chỉ tập trung vào lớp bạn quan tâm. Vui lòng chọn lớp mà bạn quan tâm: Lưu và trải nghiệm
Đóng
Điểm danh hàng ngày
  • Hôm nay +3
  • Ngày 2 +3
  • Ngày 3 +3
  • Ngày 4 +3
  • Ngày 5 +3
  • Ngày 6 +3
  • Ngày 7 +5
Bạn đã điểm danh Hôm nay và nhận 3 điểm!
Nhắn tin Zalo VNDOC để nhận tư vấn mua gói Thành viên hoặc tải tài liệu Hotline hỗ trợ: 0936 120 169

Công nghệ 8 Kết nối tri thức bài 3 trang 20, 21, 23

Lớp: Lớp 8
Môn: Công Nghệ
Bộ sách: Kết nối tri thức với cuộc sống
Phân loại: Tài liệu Tính phí

VnDoc xin giới thiệu bài Giải Công nghệ 8 Kết nối tri thức bài 3: Bản vẽ chi tiết được chúng tôi sưu tầm và tổng hợp với lời giải chi tiết, rõ ràng theo khung chương trình sách giáo khoa Công nghệ 8 Kết nối tri thức. Mời các em cùng tham khảo để nắm được nội dung bài học

Hoạt động khởi động trang 20 Công nghệ 8: Hình 3.1 là một bản vẽ chi tiết, em hãy cho biết trên bản vẽ đó có những gì?

 Hình 3.1 là một bản vẽ chi tiết, em hãy cho biết trên bản vẽ đó có những gì? 

Trả lời:

- Các thông tin về bản vẽ:

+ Yêu cầu: làm tù cạnh và mạ kẽm

+ Đường kính vòng ngoài: 14 mm

+ Đường kính vòng trong: 8 mm

+ Ngày vẽ: 04/06, người vẽ Lê Thị A

+ Ngày kiểm tra: 04/06, người kiểm tra Trần Văn B

+ Vật liệu: thép

+ Tờ số 3

I. Nội dung của bản vẽ chi tiết

Khám phá trang 21 Công nghệ 8: Quan sát Hình 3.3 và cho biết tên gọi của chi tiết được biểu diễn trong hình là gì; hãy mô tả hình dạng, kích thước và các yêu cầu kĩ thuật của chi tiết đó.

 Quan sát Hình 3.3 và cho biết tên gọi của chi tiết được biểu diễn trong hình là gì Trả lời:

- Tên gọi chi tiết: đầu côn

- Hình dạng: nón cụt

- Kích thước:

+ Đường kính vòng ngoài: Ø30 mm

+ Đường kính vòng trong: Ø20 mm

+ Đường kính khoét: Ø10 mm

+ Chiều cao: 40 mm

+ Độ dày đáy: 10 mm

- Yêu cầu kĩ thuật: làm tù cạnh, mạ kẽm.

II. Đọc bản vẽ chi tiết

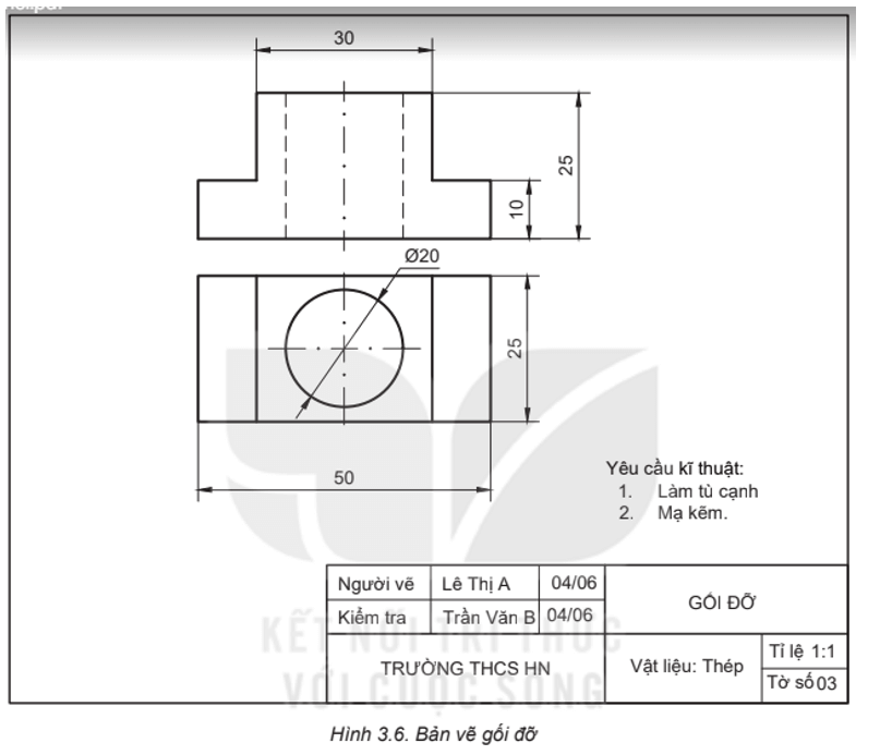
Thực hành trang 23 Công nghệ 8: Đọc bản vẽ chi tiết gối đỡ (Hình 3.6) theo trình tự trên Bảng 3.1.

  Đọc bản vẽ chi tiết gối đỡ (Hình 3.6) theo trình tự trên Bảng 3.1 Trả lời:

Trình tự đọc

Nội dung đọc

Kết quả đọc bản vẽ gối đỡ

Bước 1. Khung tên

- Tên gọi chi tiết

- Vật liệu chế tạo

- Tỉ lệ bản vẽ

- Gối đỡ

- Thép

- Tỉ lệ: 1 : 1

Bước 2. Hình biểu diễn

Tên gọi các hình chiếu

Hình chiếu đứng, hình chiếu bằng

Bước 3. Kích thước

- Kích thước chung của chi tiết

- Kích thước các phần của chi tiết

- Chiều dài: 50; chiều rộng: 25; chiều cao: 25

- Khoét: đường kính 20 mm

Bước 4. Yêu cầu kĩ thuật

Yêu cầu về gia công, xử lí bề mặt

Làm tù cạnh, mạ kẽm

-------------------------------------

Trên đây, VnDoc đã gửi tới các bạn Giải Công nghệ 8 bài 3: Bản vẽ chi tiết KNTT.

Bắt đầu năm học 2023 - 2024 trở đi sẽ được giảng dạy theo 3 bộ sách: Chân trời sáng tạo; Kết nối tri thức với cuộc sống và Cánh diều. Việc lựa chọn giảng dạy bộ sách nào sẽ tùy thuộc vào các trường. Để giúp các thầy cô và các em học sinh làm quen với từng bộ sách mới, VnDoc sẽ cung cấp lời giải bài tập sách giáo khoa, sách bài tập, trắc nghiệm từng bài và các tài liệu giảng dạy, học tập khác. Mời các bạn tham khảo qua đường link bên dưới:

  • Công nghệ 8 Chân trời sáng tạo
  • Công nghệ 8 Kết nối tri thức
  • Công nghệ 8 Cánh diều
Đóng Chỉ thành viên VnDoc PRO/PROPLUS tải được nội dung này!
Đóng
79.000 / tháng
Đặc quyền các gói Thành viên
PRO
Phổ biến nhất
PRO+
Tải tài liệu Cao cấp 1 Lớp
30 lượt tải tài liệu
Xem nội dung bài viết
Trải nghiệm Không quảng cáo
Làm bài trắc nghiệm không giới hạn
Mua cả năm Tiết kiệm tới 48%

Có thể bạn quan tâm

Xác thực tài khoản!

Theo Nghị định 147/2024/ND-CP, bạn cần xác thực tài khoản trước khi sử dụng tính năng này. Chúng tôi sẽ gửi mã xác thực qua SMS hoặc Zalo tới số điện thoại mà bạn nhập dưới đây:

Số điện thoại chưa đúng định dạng!
Số điện thoại này đã được xác thực!
Bạn có thể dùng Sđt này đăng nhập tại đây!
Lỗi gửi SMS, liên hệ Admin
4 Bình luận
Sắp xếp theo
  • Nguyễn Ngọc Lam
    Nguyễn Ngọc Lam

    hay 😁😁😁

    Thích Phản hồi 07/10/23
  • Bông cải nhỏ
    Bông cải nhỏ

    😃😃😃😃😃

    Thích Phản hồi 27/06/23
  • Minh Thong Nguyen ...
    Minh Thong Nguyen ...

    😘😘😘😘😘

    Thích Phản hồi 27/06/23
  • Người Dơi
    Người Dơi

    🤙🤙🤙🤙🤙

    Thích Phản hồi 27/06/23
🖼️

Công nghệ 8 Kết nối tri thức

Xem thêm
🖼️

Gợi ý cho bạn

Xem thêm