Đề thi học kì 1 lớp 11 môn Công nghệ Trường THPT Hùng Vương, Phú Thọ năm học 2020 - 2021
Đề kiểm tra cuối học kì 1 lớp 11 môn Công nghệ
Đề thi học kì 1 lớp 11 môn Công nghệ Trường THPT Hùng Vương, Phú Thọ năm học 2020 - 2021 là tài liệu học tập hay, kiểm tra lại kiến thức Công nghệ đã học, giúp các bạn học sinh chuẩn bị sẵn sàng cho các bài kiểm tra học kì 1 lớp 11 hiệu quả. Mời bạn đọc cùng tham khảo chi tiết tại đây.
Ngoài ra, VnDoc.com đã thành lập group chia sẻ tài liệu học tập THPT miễn phí trên Facebook: Tài liệu học tập lớp 11. Mời các bạn học sinh tham gia nhóm, để có thể nhận được những tài liệu mới nhất.
- 20 bộ đề thi học kì 1 Toán 11
- Đề cương ôn tập học kì 1 lớp 11 môn Sinh học
- Bộ đề thi học kì 1 lớp 11 môn Ngữ Văn năm học 2020 - 2021
|
SỞ GD – ĐT PHÚ THỌ TRƯỜNG THPT HÙNG VƯƠNG |
ĐỀ KIỂM TRA HỌC KỲ I KHỐI LỚP 11 NĂM HỌC 2020 – 2021 |
I. TRẮC NGHIỆM (6đ)
Câu 1: Nét lượn sóng có ứng dụng :
A. Vẽ đường bao khuất B. Vẽ đường gióng kích thước
C. Vẽ đường bao thấy D. Vẽ đường giới hạn môt phần hình cắt
Câu 2: Hình chiếu phối cảnh thường được sử dụng trong các bản vẽ nào?
A. Bản vẽ chi tiết B. Bản vẽ thiết kế kiến trúc và xây dựng
C. Bản vẽ cơ khí D. Bản vẽ lắp
Câu 3: Khổ giấy A2 có kích thước tính theo mm là:
A. 841×594 B. 594×420 C. 420×297 D. 297×210
Câu 4: Từ khổ giấy A3 ta chia được mấy khổ giấy A4?
A. 4 B. 8 C. 2 D. 6
Câu 5: Góc trục đo của hình chiếu trục đo xiên góc cân có:
A. X’O’Y’ = Y’O’Z’ = 1350 ; X’O’Z’= 900
B. X’O’Y’ = Y’O’Z’ = 900 ; X’O’Z’= 1350
C. X’O’Y’ = Y’O’Z’ = X’O’Z’ = 1350
D. X’O’Y’ = Y’O’Z’ = X’O’Z’ = 1200
Câu 6: Hệ số biến dạng của hình chiếu trục đo xiên góc cân là:
A. p = r = 1; q = 0,5 B. q = r = 1; p = 0,5
C. p = q = 0,5; r = 1 D. p = q = 1; r = 0,5
Câu 7: “Làm mô hình thử nghiệm,chế tạo thử" là giai đoạn mấy trong quá trình thiết kế:
A. 2 B. 5 C. 4 D. 3
Câu 8: Cho đường tròn R = 7 cm thì trong hình chiếu trục đo, elip đó có độ dài của trục dài và trục ngắn là:
A. 122 cm và 71 cm B. 17,08 cm và 9,94 cm
C. 8,54 cm và 4,97 cm D. 9,76 cm và 11,38 cm
Câu 9: Hình chiếu trục đo vuông góc đều có:
A. phương chiếu vuông góc với mặt phẳng hình chiếu
B. phương chiếu song song với mặt phẳng hình chiếu
C. ba hệ số biến dạng khác nhau
D. p = q = r = 0,5
Câu 10: Vẽ phác hình chiếu phối cảnh một điểm tụ của vật thể gồm có mấy bước :
A. 6 bước B. 8 bước C. 5 bước D. 7 bước
Câu 11: Chọn câu sai khi nói về “đặc điểm của đường kích thước “ :
A. Ở 2 đầu mút có vẽ mũi tên.
B. Vẽ bằng nét liền mảnh.
C. Vẽ bằng nét đứt mảnh, nét vẽ 0,25 mm.
D. Kẻ song song với phần tử cần ghi kích thước.
Câu 12: Trong các giai đoạn thiết kế, nếu "thẩm định, đánh giá phương án thiết kế" không đạt thì phải quay về giai đoạn nào?
A. Làm mô hình thử nghiệm, chế tạo thử.
B. Hình thành ý tưởng, xác định đề tài thiết kế.
C. Thu thập thông tin, tiến hành thiết kế.
D. Lập hồ sơ kĩ thuật.
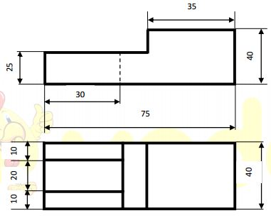
II. TỰ LUẬN (4đ): Dựa vào hình chiếu đứng và hình chiếu bằng của vật thể đã cho hãy vẽ hình chiếu cạnh và hình chiếu trục đo vuông góc đều của vật thể đó theo kích thước thật trên các hình chiếu đã cho (ghi theo đơn vị mm).

--------------------------------
VnDoc.com vừa giới thiệu tới bạn đọc Đề thi học kì 1 lớp 11 môn Công nghệ Trường THPT Hùng Vương, Phú Thọ năm học 2020 - 2021, mong rằng đây là tài liệu hữu ích giúp bạn đọc ôn tập tốt hơn môn Hóa học lớp 11 nhé. Ngoài ra VnDoc.com mời bạn đọc cùng tham khảo thêm kiến thức đề thi học kì 1 lớp 11, đề thi học kì 2 lớp 11 các môn Toán 11, Ngữ văn 11, Tiếng Anh 11, ...