Công nghệ 8 Cánh diều bài 4
Giải Công nghệ 8 Cánh diều bài 4: Bản vẽ lắp được chúng tôi sưu tầm và tổng hợp với lời giải chi tiết, rõ ràng theo khung chương trình sách giáo khoa Công nghệ 8 Cánh diều. Mời các em cùng tham khảo để nắm được nội dung bài học
Bài: Bản vẽ lắp
I. Khởi động
Người công nhân căn cứ vào đâu để lắp ráp sản phẩm đúng theo yêu cầu kĩ thuật?
Lời giải
Người công nhân căn cứ vào bản vẽ lắp để lắp ráp sản phẩm đúng theo yêu cầu kĩ thuật.
II. Nội dung bản vẽ lắp
Câu hỏi: Nội dung bản vẽ lắp gồm những gì?
Lời giải
Nội dung bản vẽ lắp gồm:
- Khung tên: tên sản phẩm, tỉ lệ bản vẽ, tên người thiết kế, nơi thiết kế, ...
- Bảng kê: Liệt kê tất cả các chi tiết của sản phẩm (số thứ tự vị trí, tên gọi, số lượng, vật liệu, ...)
- Hình biểu diễn: gồm các hình chiếu, hình cắt diễn tả hình dạng, vị trí, cách thức lắp ghép các chi tiết với nhau.
- Kích thước: gồm kích thước chung (dài, rộng, cao) của sản phẩm; kích thước lắp ghép giữa các chi tiết, kích thước xác định vị trí giữa các chi tiết,...
III. Đọc bản vẽ lắp
Câu hỏi 1: Khung tên của bản vẽ lắp Hình 4.3 cho em biết những nội dung gì?

Lời giải
Khung tên: tên sản phẩm, tỉ lệ bản vẽ, tên người thiết kế, nơi thiết kế, ...
Tên sản phẩm: Cụm nối ống
Tỉ lệ: 1:1
Nơi thiết kế: Công ty S
Câu hỏi 2: Em tìm hiểu số lượng, vật liệu của một chi tiết trong bản vẽ lắp ở đâu? Lấy một ví dụ cụ thể trong bản vẽ lắp Hình 4.3.
Lời giải
Em tìm hiểu số lượng, vật liệu của một chi tiết trong bản vẽ lắp ở bảng kê.
VD: Đầu nối có số lượng 2, vật liệu thép.
Câu hỏi 3: Hãy mô tả trình tự tháo, lắp sản phẩm Hình 4.3.
Lời giải
Trình tự lắp: 1 - 2 - 3 - 4.
Trinh tự tháo: 4 - 3 - 2 - 1.
IV. Luyện tập
Câu hỏi: Đọc bản vẽ lắp Hình 4.7 theo trình tự các bước ở Bảng 4.1.

Lời giải
1. Khung tên
- Tên sản phẩm: Tay nắm cửa
- Tỉ lệ: 1:1
- Nơi thiết kế: Công ty T
2. Bảng kê
| Tên gọi các chi tiết | Đế | Vít M6 x 10 | Vòng đệm | Tay nắm |
| Số lượng | 1 | 1 | 1 | 1 |
| Vật liệu | Inox | Thép | Thép | Inox |
3. Hình biểu diễn
- Tên các hình chiếu: Hình chiếu cạnh.
- Tên gọi hình cắt: Hình cắt bằng.
4. Kích thước
- Kích thước chung: 62, Ø56.
- Kích thước lắp ghép: Ø48, M6, Ø3,2.
5. Phân tích chi tiết
Tô màu cho các chi tiết
6. Tổng hợp
- Trình tự lắp: 1 - 4 - 3 - 2
- Trình tự tháo: 2 - 3 - 4 - 1
- Công dụng: mở/đóng cửa bằng tay.
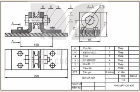
V. Vận dụng
Câu hỏi: Sưu tầm một sản phẩm đơn giản và giải thích cách thức lắp ghép giữa các chi tiết của sản phẩm đó.
Lời giải
- Bản vẽ sưu tầm

- Trình tự lắp ghép: 1 - 2 - 3 - 6 - 4 - 5.
- Giải thích: Tấm đỡ và giá đỡ được ghép với nhau nhòa 4 Vít M10x30, lắp con lăn vào trục và ghép trục vào giá đỡ nhờ đai ốc M22.
-------------------------------------
Trên đây, VnDoc đã gửi tới các bạn Giải Công nghệ 8 bài 4: Bản vẽ lắp CD.
Bắt đầu năm học 2023 - 2024 trở đi sẽ được giảng dạy theo 3 bộ sách: Chân trời sáng tạo; Kết nối tri thức với cuộc sống và Cánh diều. Việc lựa chọn giảng dạy bộ sách nào sẽ tùy thuộc vào các trường. Để giúp các thầy cô và các em học sinh làm quen với từng bộ sách mới, VnDoc sẽ cung cấp lời giải bài tập sách giáo khoa, sách bài tập, trắc nghiệm từng bài và các tài liệu giảng dạy, học tập khác. Mời các bạn tham khảo qua đường link bên dưới:
- Công nghệ 8 Chân trời sáng tạo
- Công nghệ 8 Kết nối tri thức
- Công nghệ 8 Cánh diều