IV. Vận dụng
Sưu tầm của một bản vẽ nhà đơn giản và đọc bản vẽ đó.
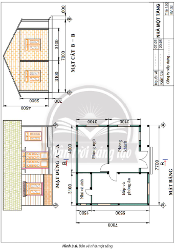
Lời giải

1. Khung tên
- Nhà một tầng
- Tỉ lệ 1:150
- Công ty xây dựng....
2. Hình biểu diễn
- Mặt bằng
- Mặt đứng A - A
- Mặt cắt B - B
3. Kích thước
- Kích thước chung: Dài 7700, rộng 7000, cao 5200 (tính cả chiều cao nền nhà).
- Kích thước từng bộ phận:
- Phòng khách: 4600 x 3100.
- Phòng ngủ: 4600 x 3100.
- Bếp và phòng ăn: 7000 x 3100 (kể cả nhà vệ sinh: 3100 x 1500).
4. Các bộ phận chính
- Ba phòng.
- 1 cửa đi đơn 2 cánh; 3 cửa đi 1 cánh; 7 cửa sổ đơn.
- Bậc thềm (2 bậc).

