Giải Công nghệ 10 Bài 14: Bản vẽ chi tiết CD
Giải Công nghệ 10 Bài 14 CD
VnDoc.com xin gửi tới bạn đọc bài viết Giải Công nghệ 10 Bài 14: Bản vẽ chi tiết CD. Mời các bạn cùng theo dõi bài viết dưới đây nhé.
I. Lập bản vẽ chi tiết
Câu hỏi 1 trang 66 SGK Công nghệ 10 CD
Bản vẽ chi tiết dùng để làm gì?
Lời giải
Bản vẽ chi tiết dùng để thể hiện hình dạng, kích thước, vật liệu chế tạo, các yêu cầu kĩ thuật cho việc chế tạo và kiểm tra một chi tiết.
Câu hỏi 2 trang 66 SGK Công nghệ 10 CD
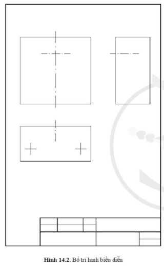
Hình 14.2 bố trí các hình biểu diễn chi tiết bằng các đường nào? Nêu vai trò của việc bố trí hình biểu diễn trên khổ giấy đã chọn.

Lời giải
- Hình 14.2 bố trí các hình biểu diễn chi tiết bằng các đường trục, đường bao.
- Vai trò của việc bố trí hình biểu diễn trên khổ giấy đã chọn: để xác định bố cục cân đối, phù hợp với khổ giấy, tạo điều kiện thuận lợi vẽ chi tiết.
Câu hỏi 3 trang 66 SGK Công nghệ 10 CD
Hình 14.3 có các hình biểu diễn nào?

Lời giải
Hình 14.3 có các hình biểu diễn: hình dạng bên ngoài, hình dạng bên trong, hình cắt, mặt cắt,..của 3 hình chiếu: hình chiếu đứng, hình chiếu cạnh, hình chiếu bằng bằng nét mảnh.
II. Đọc bản vẽ chi tiết
Câu hỏi 1 trang 69 SGK Công nghệ 10 CD
Cho biết tên gọi, vật liệu chế tạo và tỉ lệ của bản vẽ chi tiết hình 14.5
Lời giải
- Tên gọi: càng đỡ
- Vật liệu chế tạo: thép
- Tỉ lệ bản vẽ: 1:1
Câu hỏi 2 trang 69 SGK Công nghệ 10 CD
Cho biết ý nghĩa của các hình cắt A – A, B – B của bản vẽ chi tiết hình 14.5
Lời giải
- Ý nghĩa hình cắt A – A: hình cắt trên hình chiếu đứng
- Ý nghĩa hình cắt B – B: hình cắt trên hình chiếu cạnh
Câu hỏi 3 trang 69 SGK Công nghệ 10 CD
Cho biết kích thước chung, kích thước bộ phận của chi tiết hình 14.5
Lời giải
- Kích thước chung:
+ Chiều rộng: 38
+ Chiều cao: 58 ± 0,1
- Kích thước bộ phận chi tiết:
+ Lỗ bán kính 12, 20, đường kính 22
+ Tù cạnh 3
Câu hỏi 4 trang 69 SGK Công nghệ 10 CD
Cho biết nội dung yêu cầu kĩ thuật của chi tiết hình 14.5 là gì?
Lời giải
Yêu cầu kĩ thuật của chi tiết:
- Làm tù cạnh sắc
- Mạ kẽm
Trên đây VnDoc.com vừa gửi tới bạn đọc bài viết Giải Công nghệ 10 Bài 14: Bản vẽ chi tiết CD. Bài viết đã hướng dẫn bạn đọc trả lời các câu hỏi trong SGK Công nghệ 10 CD. Mời các bạn cùng tham khảo thêm tài liệu học tập môn Ngữ văn 10 CD...