Giải Công nghệ 10 Bài 8: Bản vẽ kĩ thuật và các tiêu chuẩn trình bày bản vẽ kĩ thuật CD
Giải Công nghệ 10 Bài 8 CD
Giải Công nghệ 10 Bài 8: Bản vẽ kĩ thuật và các tiêu chuẩn trình bày bản vẽ kĩ thuật CD được VnDoc.com sưu tầm và xin gửi tới bạn đọc cùng tham khảo. Mời các bạn cùng theo dõi bài viết dưới đây nhé.
I. Khái niệm, vai trò của bản vẽ kĩ thuật
Câu hỏi 1 trang 41 SGK Công nghệ 10 CD
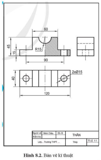
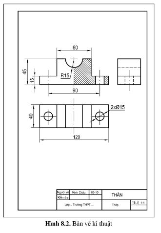
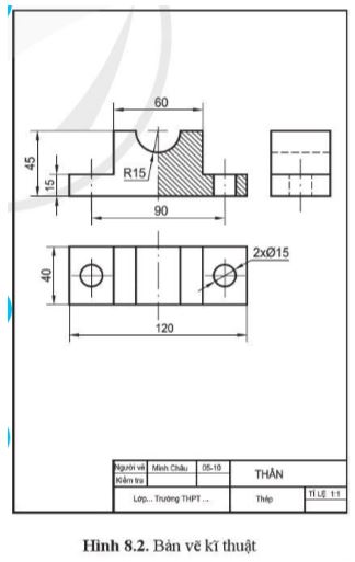
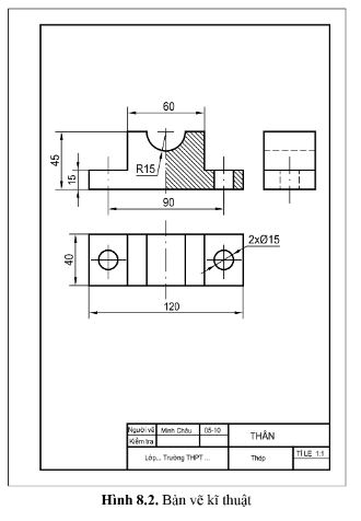
Quan sát hình 8.2 và cho biết bản vẽ kĩ thuật trình bày những thông tin gì?

Lời giải
Bản vẽ kĩ thuật trình bày những thông tin về: hình dạng, kích thước, đặc điểm của vật thể dưới dạng hình vẽ và các kí hiệu theo một quy tắc thống nhất
Câu hỏi 2 trang 41 SGK Công nghệ 10 CD
Tại sao phải quy định các tiêu chuẩn trình bày bản vẽ kĩ thuật?
Lời giải
Phải quy định các tiêu chuẩn trình bày bản vẽ kĩ thuật vì:
Bản vẽ kĩ thuật là phương tiện thông tin dùng trong các lĩnh vực kĩ thuật và đã trớ thành “ngôn ngữ" chung dùng trong kĩ thuật. Vì vậy, nó phải được xây dựng theo các quy tắc thống nhất được quy định trong các tiêu chuẩn về bản vẽ kĩ thuật.
II. Tiêu chuẩn cơ bản về trình bày bản vẽ kĩ thuật
Câu hỏi trang 42 SGK Công nghệ 10 CD
Khung tên được đặt ở vị trí nào của bản vẽ?
Lời giải
Khung tên được đặt ở vị trí góc phải phía dưới bản vẽ.
Câu hỏi trang 43 SGK Công nghệ 10 CD
Tại sao phải sử dụng tỉ lệ trên bản vẽ kĩ thuật? Bản vẽ hình 8.2 có tỉ lệ như thế nào?

Lời giải
- Phải sử dụng tỉ lệ trên bản vẽ kĩ thuật vì kích thước vật thể thực tế nếu quá lớn; không phải vật thể nào cũng thể hiện được đúng y chang chính xác vào trong bản vẽ. Vậy nên cần phải sử dụng tỉ lệ trên bản vẽ kĩ thuật.
- Bản vẽ hình 8.2 có tỉ lệ 1:1
Câu hỏi trang 44 SGK Công nghệ 10 CD
Quan sát bản vẽ kĩ thuật hình 8.2 và hình 8.5 cho biết:
Loại nét vẽ sử dụng khi ghi kích thước.
Đường gióng, đường kích thước được vẽ như thế nào so với đoạn cần ghi kích thước?
Ghi kích thước đoạn thẳng, kích thước cung tròn và kích thước đường tròn khác nhau ở điểm gì?


Lời giải
- Loại nét vẽ sử dụng khi ghi kích thước: nét liền mảnh
- Đường gióng được vẽ bằng nét liền mảnh và vượt qua đường kích thước từ 2mm đến 4mm, thường được kẻ vuông góc với đường kích thước ; đường kích thước được vẽ thường song song với kích thước được ghi; ở đầu mút thường có vẽ mũi tên.
- Ghi kích thước đoạn thẳng, kích thước cung tròn và kích thước đường tròn khác nhau ở điểm: khi ghi kích thước đường tròn, cung tròn, trước con số ghi kích thước đường trofnn ghi kí hiệu Ø và bán kính cung tròn ghi kí hiệu R
VnDoc.com vừa gửi tới bạn đọc bài viết Giải Công nghệ 10 Bài 8: Bản vẽ kĩ thuật và các tiêu chuẩn trình bày bản vẽ kĩ thuật CD. Hi vọng qua bài viết này bạn đọc có thêm tài liệu để học tập tốt hơn môn Công nghệ 10 CD. Mời các bạn cùng tham khảo thêm tài liệu môn Ngữ văn 10 CD...