Giải Công nghệ 10 Bài 9: Hình chiếu vuông góc CD
Giải Công nghệ 10 Bài 9 CD
VnDoc.com xin gửi tới bạn đọc bài viết Giải Công nghệ 10 Bài 9: Hình chiếu vuông góc CD. Mời các bạn cùng theo dõi bài viết dưới đây nhé.
I. Phương pháp hình chiếu vuông góc
Câu hỏi 1 trang 45 SGK Công nghệ 10 CD
Vật thể nằm ở vị trí nào so với mặt phẳng hình chiếu theo hướng chiếu của người quan sát?

Lời giải
Vật thể nằm ở vị trí mặt trước, song song so với mặt phẳng hình chiếu theo hướng chiếu của người quan sát
Câu hỏi 2 trang 46 SGK Công nghệ 10 CD
Vì sao phải xoay mặt phẳng hình chiếu bằng và mặt phẳng hình chiếu cạnh về trùng với mặt phẳng hình chiếu đứng?
Lời giải
Vì khi lập bản vẽ, người ta thể hiện trên mặt phẳng giấy.
Câu hỏi 3 trang 46 SGK Công nghệ 10 CD
Quan sát các hình chiếu trên hình 9.4 và cho biết quan hệ về vị trí giữa các hình chiếu đó với nhau.

Lời giải
Quan hệ về vị trí giữa các hình chiếu đó với nhau:
Các hình chiếu đó vuông góc với nhau từng đôi một.
Câu hỏi 4 trang 46 SGK Công nghệ 10 CD
Đọc tên các hình chiếu trên hình 9.4

Lời giải
Tên các hình chiếu trên hình 9.4
Hình chiếu A : hình chiếu đứng
Hình chiếu B: hình chiếu bằng
Hình chiếu C: hình chiếu cạnh
Câu hỏi 5 trang 46 SGK Công nghệ 10 CD
Chỉ rõ các nét đứt mảnh trên hình 9.4 thể hiện những cạnh nào của vật thể?

Lời giải
Các nét đứt mảnh trên hình 9.4 thể hiện cạnh khuất của vật thể vẽ bằng nét đứt mảnh.
II. Vẽ hình chiếu vuông góc
Câu hỏi 1 trang 47 SGK Công nghệ 10 CD
Vật thể trên hình 9.7 được tạo thành từ mấy khối? Đọc kích thước của các khối đó.

Lời giải
Vật thể trên hình 9.7 được tạo thành từ khối hình cầu, khối hình hộp chữ nhật.
- Mặt trước: Khối hình chữ T ngược (60 - 20- 45)
- Mặt trái:
+ Khối hình cầu: Ø20 (đường kính 20 cm)
+ Khối dạng chữ L: gồm hai khối trụ (có kích thước 40-20-20 và 40- 20- 20)
- Mặt trên:
+ Khối hình hộp khối hình hộp chữ nhật: (60 - 40 - 20)
Câu hỏi 2 trang 47 SGK Công nghệ 10 CD
Mặt nào của vật thể trên hình 9.7 nên được chọn để vẽ hình chiếu đứng, vì sao?

Lời giải
- Mặt trước của vật thể chọn làm hình chiếu đứng
- Giải thích: Chọn như vậy mới nhìn được hình chiếu cạnh.
Câu hỏi 3 trang 47 SGK Công nghệ 10 CD
Tỉ lệ vẽ trong trường hợp này được chọn như thế nào để phù hợp với khổ giấy A4
Lời giải
Tỉ lệ vẽ chọn nên là 1:10 để phù hợp với khổ giấy A4.
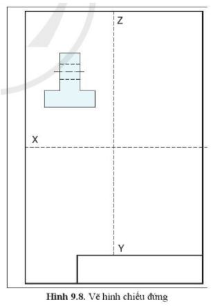
Câu hỏi 4 trang 47 SGK Công nghệ 10 CD
Quan sát hình 9.8 và cho biết: Cạnh nào của vật thể nên được chọn làm đường cơ sở trên hình chiếu đứng?

Lời giải
Cạnh đáy của vật thể nên được chọn làm đường cơ sở trên hình chiếu đứng.
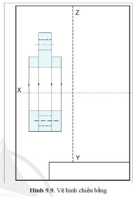
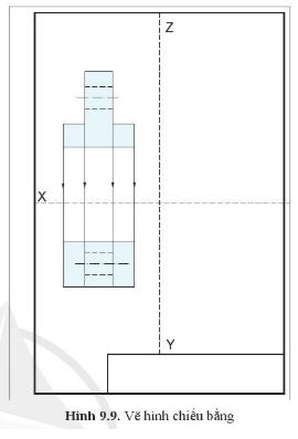
Câu hỏi 5 trang 48 SGK Công nghệ 10 CD
Quan sát hình 9.9 và cho biết: Làm thế nào để xác định vị trí của hình chiếu bằng so với hình chiếu đứng?

Lời giải
Quan sát hình 9.9 và cho biết: để xác định vị trí của hình chiếu bằng so với hình chiếu đứng ta dùng đường gióng các phần của hình chiếu đứng xuống và vẽ các phần của hình chiếu bằng.
Câu hỏi 6 trang 48 SGK Công nghệ 10 CD
Kích thước chiều rộng của vật thể trên hình chiếu bằng được xác định như thế nào?
Lời giải
Kích thước chiều rộng của vật thể trên hình chiếu bằng được xác định qua kích thước vật thể và kích thước của hình chiếu đứng.
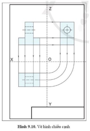
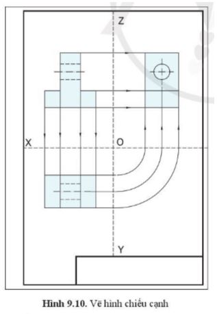
Câu hỏi 7 trang 48 SGK Công nghệ 10 CD
Quan sát hình 9.10 và cho biết: Làm thế nào để xác định vị trí của hình chiếu cạnh?

Lời giải
Để xác định vị trí của hình chiếu cạnh, ta gióng các cạnh của hình chiếu đứng và cạnh của hình chiều bằng để xác định các phần của hình chiếu cạnh.
Câu hỏi 8 trang 48 SGK Công nghệ 10 CD
Quan sát hình 9.11 và cho biết:
Có bao nhiêu kích thước sẽ được ghi trên bản vẽ?
Nên bố trí các kích thước như thế nào cho hợp lí nhất?

Lời giải
- Có 7 kích thước ghi trên bản vẽ
- Nên bố trí ghi kích thước phân đều trên cả 3 hình chiếu
Trên đây VnDoc.com vừa gửi tới bạn đọc bài viết Giải Công nghệ 10 Bài 9: Hình chiếu vuông góc CD. Hi vọng qua bài viết này bạn đọc có thêm tài liệu để học tập môn Công nghệ 10 CD. Mời các bạn cùng tham khảo thêm tài liệu học tập môn Ngữ văn 10 CD...