Thiết kế và công nghệ 10 bài 15: Bản vẽ xây dựng KNTT
Thiết kế và công nghệ 10 bài 15: Bản vẽ xây dựng KNTT được chúng tôi sưu tầm và tổng hợp lại nhằm giúp các bạn học sinh tham khảo để chuẩn bị tốt cho bài học môn Công nghệ 10 sách KNTT mới nhất. Mời các bạn cùng tham khảo bài viết dưới đây.
Thiết kế và công nghệ 10 bài 15
Câu hỏi tr 85
Mở đầu
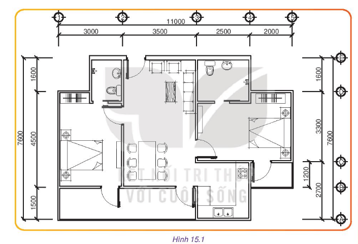
Em hãy đọc bản vẽ mặt bằng ở Hình 15.1 và cho biết các nội dung của bản vẽ?

Phương pháp giải:
Quan sát, suy luận
Lời giải chi tiết:
Bản vẽ hình 15.1 thể hiện cho ta biết được các vị trí, kích thước của tường, vách ngăn, cửa đi, cửa sổ, cầu thang, cách bố trí các phòng, các thiết bị và đồ đạc của một mặt bằng
Câu hỏi tr 89
Luyện tập
Đọc bản vẽ các mặt bằng tầng 1 và tầng 2 của ngôi nhà hai tầng (Hình 15.3 c, d) và cho biết:

Số phòng, chức năng, kích thước và trang thiết bị mỗi phòng.
Phương pháp giải:
Quan sát, suy luận
Lời giải chi tiết
Mặt bằng tầng 1 có 3 phòng:
- 1 phòng bếp: kích thước 3000 x 4800, gồm có bàn ăn, bếp, là nơi ăn uống,
- 1 phòng WC: kích thước 2200 x 3000, gồm có bồn cầu, chậu rửa, là nơi vệ sinh cá nhân,
- 1 phòng khách: kích thước 4200 x 4800, gồm có bộ bàn ghế tiếp khách, chậu cây, là nơi tiếp khách, sinh hoạt chung của gia đình.
Hành lang ở trước phòng vệ sinh, cầu thang ở giữa phòng bếp với phòng khách.
Mặt bằng tầng 2 có 3 phòng:
- 2 phòng ngủ: bao gồm giường ngủ, bàn làm việc; phòng ngủ 1 có kích thước 4200 x 4800, phòng ngủ 2 có kích thước 3000 x 4800.
- 1 phòng vệ sinh: kích thước 2200 x 3000, bao gồm bồn cầu, chậu rửa.
Số lượng và chủng loại các cửa đi và số cửa sổ.
Phương pháp giải:
Quan sát, suy luận
Lời giải chi tiết
Mặt bằng tầng 1: Có 1 cửa đi đơn hai cánh, 3 cửa đi đơn một cánh và 3 cửa sổ.
Mặt bằng tầng 2: Có 1 cửa đi đơn hai cánh, 3 cửa đi đơn một cánh và 3 cửa sổ.
Vị trí các bộ phận khác (hành lang, cầu thang, ban công...)
Phương pháp giải:
Quan sát, suy luận
Lời giải chi tiết
Mặt bằng tầng 3: hành lang ở trước phòng vệ sinh, cầu thang ở giữa phòng bếp với phòng khách.
Mặt bằng tầng 4: ban công ở cạnh phòng ngủ số 1, trước cửa đi đơn hai cánh, cầu thang ở giữa hai phòng ngủ.
Luyện tập
Đọc bản vẽ mặt đứng của ngôi nhà hai tầng (Hình 15.3a) và cho biết:

Hình dáng chung của ngôi nhà
Phương pháp giải: quan sát, suy luận
Lời giải chi tiết
Hình dáng chung của ngôi nhà: có 3 tầng (2 tầng chính và 1 sân thượng) và dạng hình chữ nhật.
Cách bố trí các bậc thềm, cửa ra vào, cửa sổ, bồn hoa, ban công, mái.
Phương pháp giải: quan sát, suy luận
Lời giải chi tiết
- Cửa chính ở phía bên trái, trước cửa chính có bậc thềm.
- Phía bên trên cửa chính là cửa ra ngoài ban công.
Luyện tập
Đọc bản vẽ mặt cắt A-A của ngôi nhà hai tầng (Hình 15.3b) và cho biết:

Vị trí của mặt phẳng cắt tưởng tượng.
Phương pháp giải: quan sát, suy luận
Lời giải chi tiết
Mặt phẳng cắt tưởng tượng nằm ở vị trí giữa phòng khách và phòng bếp.
Chiều cao các bộ phận: nền, tường, mái.
Phương pháp giải: quan sát, suy luận
Lời giải chi tiết
Chiều cao của tầng 1 cao 2740
Chiều cao Tầng 2 cao 2720
Mái cao 600.
Kích thước cửa đi, cửa sổ, cầu thang.
Phương pháp giải: quan sát, suy luận
Lời giải chi tiết
Cửa đi cao 2200
Cửa sổ
Cầu thang cao: 2590
Câu hỏi tr 91
Thực hành
Đọc bản vẽ nhà trên Hình 15.4.

Phương pháp giải: quan sát, suy luận thực tiễn
Lời giải chi tiết
Hình 15.4 thể hiện
- Ngôi nhà 1 tầng có cửa chính phía bên trái, mái ngói. Có cửa sổ phía bên phải.
- Nhà có chiều rộng 9000, chiều dài 20000. Phần hiên trước cửa đại có kích thước 1200 x 4500.
- Có 7 phòng: 1 phòng khách, 3 phòng ngủ, 2 phòng WC, 1 phòng bếp - ăn.
- Từ cửa chính vào là phòng khách, kích thước 4500 x 8800. Bên cạnh phòng khách là phòng bếp - ăn, kích thước 6700 x 4500, bao gồm bàn ăn, bếp. Trong phòng bếp có cửa đi đơn 2 cánh thông ra sân bên ngoài. Bên cạnh phòng bếp là nhà vệ sinh, bao gồm bồn cầu, chậu rửa.
- Đối diện phòng khách là phòng ngủ 1, kích thước 4500 x 5500, trong phòng ngủ 1 có 2 cửa sổ, 1 phòng WC.
- Bên cạnh phòng ngủ 1 là phòng ngủ 2 có kích thước 4500 x 4500, liền kề phòng ngủ 2 là phòng ngủ 3 có kích thước 4500 x 5500.
Câu hỏi tr 92
Kết nối năng lực
Em hãy tìm hiểu cách vẽ mặt đứng và hình cắt của ngôi nhà.

Phương pháp giải: quan sát, suy luận thực tiễn
Lời giải chi tiết
B1: xác định hình dáng ngôi nhà và sơ đồ mô phỏng các phòng
B2: xác định vị trí của các phòng
B3: Xác định các chi tiết như cửa ra vào để có bố cục thuận tiện nhất
B4: Hoàn thành bản vẽ
Vận dụng
Hãy vẽ mặt bằng của ngôi nhà một tầng có diện tích 90m2, có 2 phòng ngủ, 1 phòng sinh hoạt chung, 1 bếp ăn và 2 nhà vệ sinh.
Phương pháp giải: quan sát, liên hệ thực tế
Lời giải chi tiết
Gợi ý

-------------------------------------
Trên đây VnDoc gửi tới bạn đọc bài viết Thiết kế và công nghệ 10 bài 15: Bản vẽ xây dựng KNTT. Hi vọng qua bài viết này bạn đọc có thêm nhiều tài liệu để học tập tốt hơn môn Công nghệ 10 KNTT. Mời các bạn cùng tham khảo thêm tài liệu học tập các môn Ngữ văn 10 KNTT, Toán 10 KNTT...