Thiết kế và công nghệ 10 bài 9: Hình chiếu vuông góc KNTT
Chúng tôi xin giới thiệu bài Thiết kế và công nghệ 10 bài 9: Hình chiếu vuông góc KNTT được VnDoc sưu tầm và tổng hợp lại nhằm giúp các bạn học sinh tham khảo để chuẩn bị tốt cho bài học môn Công nghệ 10 sách KNTT mới nhất. Mời các bạn cùng tham khảo bài viết dưới đây.
Thiết kế và công nghệ 10 bài 9
Câu hỏi tr 52
Mở đầu
Hình 9.1 thể hiện một vật thể bằng hình vẽ và đoạn văn kế bên cũng mô tả vật thể đó bằng lời, em có nhận xét gì về hai cách mô tả đó?

Phương pháp giải:
Quan sát, suy luận logic
Lời giải chi tiết:
- Nếu chỉ có một hình vẽ thì ta không thể mô tả hết được các đặc điểm như đoạn văn đã yêu cầu.
- Nhưng khi có 2 hình vẽ thì các đặc điểm của vật được thể hiện rõ ràng và có độ chính xác hơn.
Câu hỏi tr 53
Khám phá
Từ Hình 9.2 đến Hình 9.5 mô tả nội dung của phương pháp chiếu góc thứ nhất. Hãy quan sát các hình đó và sắp xếp lại các đoạn văn sau theo đúng thứ tự:

a) Đặt vật thể vào trong một góc tạo bởi các mặt phẳng hình chiếu đứng (P1), mặt phẳng hình chiếu bằng (P2) và mặt phẳng hình chiếu cạnh (P3) vuông góc với nhau từng đôi một.
b) Quay mặt phẳng hình chiếu bằng quanh trục Ox một góc 90 độ và quay mặt phẳng hình chiếu cạnh Oz một góc 90 độ để các hình chiếu cùng nằm trên một mặt phẳng.
c) Chiếu vật thể theo hướng chiếu từ trước lên mặt phẳng P1, theo hướng chiếu từ trên lên mặt phẳng P2 và theo hướng chiếu từ trái lên mặt phẳng P3 sẽ được các hình chiếu đứng A, hình chiếu bằng B và hình chiếu cạnh C.
Phương pháp giải:
Quan sát, suy luận
Lời giải chi tiết:
Sắp xếp theo thứ tự: a - c – b
Trên Hình 9.3 vẽ người quan sát đang đứng ở vị trí ứng với hướng chiếu từ trước, hãy nêu mối quan hệ về vị trí giữa người quan sát, mặt phẳng hình chiếu P1 và vật thể.
Phương pháp giải:
Quan sát, suy luận
Lời giải chi tiết:
Vật thể ở giữa người quan sát với mặt phẳng của hình chiếu P1
Quan sát Hình 9.5 và nêu mối quan hệ về vị trí giữa các hình chiếu A, B, C trong phương pháp chiếu góc thứ nhất.
Phương pháp giải:
Quan sát, suy luận
Lời giải chi tiết:
- Hình chiếu A ở góc trên bên trái.
- Hình chiếu C ở phía bên phải hình chiếu A.
- Hình chiếu B ở phía dưới hình chiếu A.
Quan sát Hình 9.6 và phát biểu cách xác định các kích thước m và n của hình chiếu cạnh.

Phương pháp giải:
Quan sát, suy luận logic
Lời giải chi tiết:
Xác định kích thước m và n là:
- m: chiều rộng;
- n: chiều cao
Câu hỏi tr 54
Khám phá
Hình 9.7 và Hình 9.8 mô tả phương pháp chiếu góc thứ ba, quan sát các hình trên và cho biết:
- Vị trí của vật thể so với các mặt phẳng hình chiếu.
- Mối quan hệ giữa vật thể, mặt phẳng hình chiếu và người quan sát.
- Vị trí tương đối giữa các hình chiếu vuông góc.

Phương pháp giải:
Quan sát, suy luận logic
Lời giải chi tiết:
- Vật thể nằm ở phía sau mặt phẳng P1, vật thể nằm phía dưới mặt phẳng P2, vật thể nằm phía bên phải mặt phẳng P3.
- Mặt phẳng P1 nằm giữa vật thể và người quan sát.
- Mặt phẳng C nằm bên trái mặt phẳng A, mặt phẳng B nằm bên trên mặt phẳng A.
Luyện tập
Cho vật thể, các hướng chiếu A, B, C và các hình chiếu 1, 2, 3 (Hình 9.9) hãy:

a) Lập bảng theo mẫu 9.1. Đánh dấu (x) vào bảng đó để chỉ ra sự tương ứng của hình chiếu với hướng chiếu và ghi tên gọi các hình chiếu.
b) Lập hai bảng theo mẫu Bảng 9.2 và Bảng 9.3 và ghi số thứ tự của hình chiếu vào các ô của các bảng đó để chỉ rõ cách bố trí các hình chiếu theo phương pháp chiếu góc thứ nhất (PPCG1) và phương pháp chiếu góc thứ 3 (PPCG3).
Phương pháp giải:
Quan sát, suy luận logic
Lời giải chi tiết:
a.

b.

Câu hỏi tr 56
Thực hành
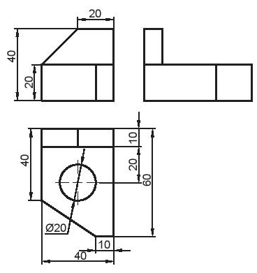
Cho mô hình ba chiều của các vật mẫu (từ Hình 9.17 đến Hình 9.20). Lập bản vẽ kĩ thuật gồm 3 hình chiếu vuông góc của các vật thể đó.

Phương pháp giải:
Quan sát và vẽ lại
Lời giải chi tiết:
Hình 9.17: Giá đỡ chữ V

Hình 9.18

Hình 9.19

Hình 9.20

-------------------------------------
Trên đây VnDoc gửi tới bạn đọc bài viết Thiết kế và công nghệ 10 bài 9: Hình chiếu vuông góc KNTT. Hi vọng qua bài viết này bạn đọc có thêm nhiều tài liệu để học tập tốt hơn môn Công nghệ 10 KNTT. Mời các bạn cùng tham khảo thêm tài liệu học tập các môn Ngữ văn 10 KNTT, Toán 10 KNTT...