Thiết kế và công nghệ 10 bài 8: Bản vẽ kĩ thuật và tiêu chuẩn trình bày bản vẽ kĩ thuật KNTT
Thiết kế và công nghệ 10 bài 8: Bản vẽ kĩ thuật và tiêu chuẩn trình bày bản vẽ kĩ thuật KNTT được chúng tôi sưu tầm và tổng hợp lại nhằm giúp các bạn học sinh tham khảo để chuẩn bị tốt cho bài học môn Công nghệ 10 sách KNTT mới nhất. Mời các bạn cùng tham khảo bài viết dưới đây.
Thiết kế và công nghệ 10 bài 8
Câu hỏi tr 45
Mở đầu
Hình 8.1 biểu diễn hình dáng và kích thước của một chiếc bàn. Em hãy mô tả chiếc bàn đó. Trong quá trình mô tả, em có gặp khó khăn gì không?

Phương pháp giải:
Quan sát, suy luận logic
Lời giải chi tiết:
Kích thước của bàn là
- Cao 800
- Rộng mặt bàn 580
- Chiều dài mặt bàn 1200
- Độ dày mặt bàn 60
- Chiều rộng chân bàn là 480
- Khoảng cách từ chân bàn đến ngăn kéo là 500
- Khoảng trống giữa hai chân bàn là 1100...
Câu hỏi tr 46
Hãy quan sát và cho biết trên các Hình 8.2 a, b, c, d thể hiện hoạt động gì và liên quan như thế nào đến bản vẽ kĩ thuật.

Khám phá
Phương pháp giải:
Quan sát, liên hệ thực tiễn
Lời giải chi tiết:
Hình 8.2a: Nhà thiết kế vẽ sơ đồ, phác họa, thiết kế bản vẽ kĩ thuật
Hình 8.2b: Nhà thiết kế trao đổi, đóng góp ý kiến cho bản vẽ
Hình 8.2c: Công nhân đọc, đối chiếu bản vẽ liên quan đến sản phẩm khi thiết kế
Hình 8.2d: Kĩ sư thiết kế sản phẩm dựa vào bản vẽ
Hãy cho biết vai trò của bản vẽ mặt bằng nhà ở
Phương pháp giải:
Quan sát, suy luận logic
Lời giải chi tiết:
Bản vẽ mặt bằng nhà ở có vai trò rất lớn trong đời sống. Nó cho biết
- Diện tích của mặt bằng trong thi công, thiết kế công trình là hình ảnh quan trọng nhất trên một bản vẽ.
- Bản vẽ cho biết kích thước và cách bố trí các phòng, phương tiện và thể hiện sự tiện ích trong phòng, lối đi lại cũng như vị trí, kích thước và độ dày của các chi tiết, giúp kỹ sư và nhân viên xây dựng bố trí nội thất một cách chính xác nhất.
Câu hỏi tr 47
Khám phá
Cách chia các khổ giấy chính từ khổ A0?
Phương pháp giải:
Quan sát, suy luận logic, liên hệ thực tế
Lời giải chi tiết:
- Gấp đôi khổ giấy A0 ta được khổ giấy A1.
- Gấp đôi khổ giấy A1 ta được khổ giấy A2.
- Gấp đôi khổ giấy A2 ta được khổ giấy A3.
- Gấp đôi khổ giấy A3 ta được khổ giấy A4.
Khám phá
Em hãy quan sát Hình 8.5 và cho biết cách vẽ khung vẽ.

Phương pháp giải:
Quan sát, suy luận logic
Lời giải chi tiết:
Khung bản vẽ sẽ được vẽ bằng nét liền đậm cách cạnh khổ giấy phải 20 mm và cách ba mép còn lại mỗi mép 10 mm.
Câu hỏi tr 48
Khám phá
Em hãy mô tả các kích thước và nội dung của khung tên.

Phương pháp giải:
Quan sát, suy luận logic
Lời giải chi tiết:
Khung tên ghi các nội dung về quản lí bản vẽ, đặt ở góc phải phía dưới bản vẽ. Kích thước của toàn bộ khung tên là 32 x 140 mm. Kích thước cụ thể của nội dung khung tên như sau:
(1) Tên gọi của vật thể: chiều rộng 16 mm, chiều dài 70 mm
(2) Tên vật liệu: chiều rộng 8 mm, chiều dài 30 mm
(3) Tỉ lệ của bản vẽ: chiều rộng 8 mm, chiều dài 20 mm
(4) Kí hiệu số bài tập: chiều rộng 8 mm, chiều dài 20 mm
(5) Họ và tên người vẽ: chiều rộng 8 mm, chiều dài 30 mm
(6) Ngày lập bản vẽ: chiều rộng 8 mm, chiều dài 20 mm
(7) Chữ kí của người kiểm tra: chiều rộng 8 mm, chiều dài 30 mm
(8) Ngày kiểm tra: chiều rộng 8 mm, chiều dài 20 mm
(9) Tên trường, lớp (đơn vị): chiều rộng 16 mm, chiều dài 70 mm.
Câu hỏi tr 49
Khám phá
Quan sát Hình 8.7 và cho biết tên gọi của các nét vẽ

Phương pháp giải:
Quan sát, tra cứu
Lời giải chi tiết:
- Nét liền mảnh
- Nét liền mảnh
- Nét liền mảnh
- Nét lượn sóng
- Nét gạch dài chấm mảnh
- Nét đứt mảnh
- Nét liền đậm
- Nét liền đậm
- Nét gạch dài chấm mảnh
Câu hỏi tr 50
Khám phá
Hình 8.8 vẽ các chữ cái và chữ số theo tiêu chuẩn. Kích thước ô li là 1 mm x 1mm. Hãy quan sát và rút ra kết luận về:
- Khổ chữ
- Kiểu chữ

Phương pháp giải:
Quan sát, tra cứu
Lời giải chi tiết:
- Kiểu chữ: kiểu đứng
- Khổ chữ: đạt tiêu chuẩn, khổ 10 mm
Câu hỏi tr 51
Khám phá

Quan sát Hình 8.9 và cho biết:
- Tên gọi của các phần tử ghi kích thước tương ứng với kí hiệu A, B, C, D.
- Chiều rộng và chiều cao của vật thể.
Phương pháp giải:
Quan sát, suy luận logic
Lời giải chi tiết:
- Đường kích thước
- Chữ số kích thước
- Đầu mút đường kích thước
- Đường gióng kích thước
Chiều rộng của vật thể là 70 mm, chiều cao là 80 mm.
Quan sát Hình 8.10 và phát biểu quy luật về vị trí và hướng của con số kích thước so với đường kích thước.

Phương pháp giải:
Quan sát, suy luận logic
Lời giải chi tiết:
Quy luật về vị trí và hướng của con số kích thước so với đường kích thước:
- Đối với kích thước góc:
+ Nếu đường kích thước thẳng đứng, ta nhận thấy đầu con số kích thước hướng sang trái.
+ Đối với các đường kích thước nghiêng (so với đường nằm ngang của bản vẽ), con số kích thước được ghi sao cho, nếu ta quay đường kích thước và con số kích thước một góc nhỏ hơn 90 độ đến vị trí đường kích thước nằm ngang thì đầu con số kích thước hướng lên trên.
- Đối với kích thước độ dài: quy ước lấy đơn vị đó là mm, trên bản vẽ không ghi đơn vị đo.
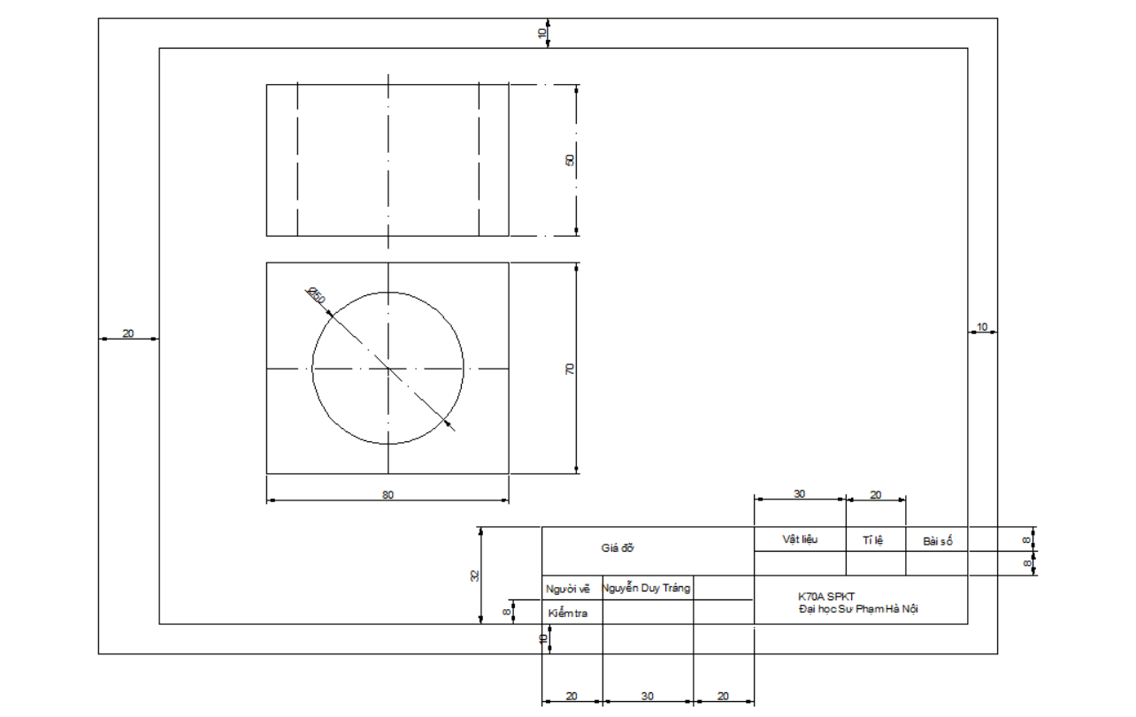
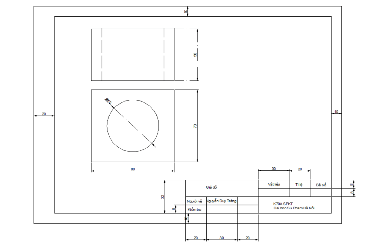
Vận dụng
Trên khổ giấy A4, hãy vẽ khung bản vẽ, khung tên và viết chữ vào khung tên
Phương pháp giải:
Vẽ và thực nghiệm lại
Lời giải chi tiết:
HS tự vẽ lại trên khổ giấy A4, theo đúng kích thước tiêu chuẩn.
Vẽ lại Hình 8.11 bao gồm cả phần ghi kích thước và khổ giấy đã chuẩn bị ở trên, theo đúng tiêu chuẩn.

Phương pháp giải:
Quan sát hình vẽ
Lời giải chi tiết:

Học sinh vẽ lại như hình vẽ dưới đây
-------------------------------------
Trên đây VnDoc gửi tới bạn đọc bài viết Thiết kế và công nghệ 10 bài 8: Bản vẽ kĩ thuật và tiêu chuẩn trình bày bản vẽ kĩ thuật KNTT. Hi vọng qua bài viết này bạn đọc có thêm nhiều tài liệu để học tập tốt hơn môn Công nghệ 10 KNTT. Mời các bạn cùng tham khảo thêm tài liệu học tập các môn Ngữ văn 10 KNTT, Toán 10 KNTT...