Giải vở bài tập Toán 3 bài 84: Chu vi hình chữ nhật
Giải vở bài tập Toán lớp 3 bài 84: Chu vi hình chữ nhật trang 97, 98 Vở bài tập Toán 3 tập 1 có đáp án chi tiết cho từng bài tập giúp các em học sinh biết cách tính chu vi hình chữ nhật (khi biết chiều dài chiều rộng). Đồng thời làm quen với giải toán có nội dung hình học.
Giải vở bài tập Toán lớp 3 trang 97, 98 tập 1
Bài 1 trang 97 Vở bài tập Toán lớp 3 tập 1
a. Tính chu vi hình chữ nhật ABCD có kích thước ghi trên hình vẽ:

b. Tính chu vi hình chữ nhật có chiều dài 15m, chiều rộng 10m.
Phương pháp giải:
- Chu vi hình chữ nhật bằng chiều dài cộng chiều rộng (cùng đơn vị đo) rồi nhân với 2.
Lời giải chi tiết:
a. Chu vi hình chữ nhật ABCD là:
(17 + 11) ⨯ 2 = 56 (cm)
Đáp số: 56cm
b. Chu vi hình chữ nhật có chiều dài 15m, chiều rộng 10m là:
(15 + 10) ⨯ 2 = 50 (m)
Đáp số: 50m
Bài 2 trang 97 Vở bài tập Toán lớp 3 tập 1
Một thửa ruộng hình chữ nhật có chiều dài 140m, chiều rộng 60m. Tính chu vi thửa ruộng đó.
Phương pháp giải:
- Chu vi thửa ruộng hình chữ nhật bằng chiều dài cộng chiều rộng (cùng đơn vị đo) rồi nhân với 2.
Lời giải chi tiết:

Bài giải
Chu vi thửa ruộng là:
(140 + 60) ⨯ 2 = 400 (m)
Đáp số: 400m
Bài 3 trang 98 Vở bài tập Toán lớp 3 tập 1
Tính chu vi hình chữ nhật có chiều dài 3dm, chiều rộng 15cm.
Phương pháp giải:
- Đổi chiều dài có đơn vị đề-xi-mét thành cạnh có đơn vị xăng-ti-mét.
- Chu vi hình chữ nhật bằng chiều dài cộng chiều rộng (cùng đơn vị đo) rồi nhân với 2.
Lời giải chi tiết:

Bài giải
3dm = 30cm
Chu vi hình chữ nhật là:
(30 + 15) ⨯ 2 = 90 (cm)
Đáp số : 90cm
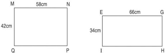
Bài 4 trang 98 Vở bài tập Toán lớp 3 tập 1
Đúng ghi Đ, sai ghi S vào ô trống:

A. Chu vi hình chữ nhật MNPQ bằng chu vi hình chữ nhật EGHI
B. Chu vi hình chữ nhật MNPQ bé hơn chu vi hình chữ nhật EGHI
C. Chu vi hình chữ nhật MNPQ lớn hơn chu vi hình chữ nhật EGHI
Phương pháp giải:
- Chu vi hình chữ nhật bằng chiều dài cộng chiều rộng (cùng đơn vị đo) rồi nhân với 2.
- So sánh rồi điền Đ hoặc S vào chỗ trống.
Lời giải chi tiết:
A. Chu vi hình chữ nhật MNPQ bằng chu vi hình chữ nhật EGHI Đ
B. Chu vi hình chữ nhật MNPQ bé hơn chu vi hình chữ nhật EGHI S
C. Chu vi hình chữ nhật MNPQ lớn hơn chu vi hình chữ nhật EGHI S
>> Bài tiếp theo: Giải vở bài tập Toán 3 bài 85: Chu vi hình vuông
..................................
Giải vở bài tập Toán lớp 3 trang 97, 98 tập 1 có phương pháp giải và lời giải chi tiết cho từng dạng bài tập cho các em học sinh tham khảo, luyện tập cách giải các dạng toán tìm chiều dài hình chữ nhật và kẻ thêm một đoạn thẳng để được hình chữ nhật. Hy vọng với những tài liệu này, các em học sinh sẽ học tốt môn Toán lớp 3 hơn mà không cần sách giải.
Bài tập về hình chữ nhật
- Lý thuyết Toán lớp 3: Hình chữ nhật. Chu vi hình chữ nhật
- Lý thuyết Toán lớp 3: Diện tích hình chữ nhật
- Đề kiểm tra 15 phút môn Toán lớp 3: Chu vi hình chữ nhật - Chu vi hình vuông
- Bài tập nâng cao lớp 3: Diện tích hình vuông, diện tích hình chữ nhật
- Bài tập Diện tích hình chữ nhật
- Giải vở bài tập Toán lớp 3 bài 86: Luyện tập tính chu vi hình chữ nhật và chu vi hình vuông
Ngoài Giải vở bài tập Toán 3 bài 84: Chu vi hình chữ nhật, các em học sinh lớp 3 còn có thể tham khảo Giải bài tập SGK Toán 3: Luyện tập tính chu vi hình vuông, chu vi hình chữ nhật hay đề thi học kì 1 lớp 3 mà VnDoc.com đã sưu tầm và chọn lọc. Hy vọng với những tài liệu này, các em học sinh sẽ học tốt môn Toán lớp 3 hơn mà không cần sách giải.