Vở bài tập Toán lớp 5 bài 29: Luyện tập chung chương 1
Vở bài tập Toán lớp 5 bài 29: Luyện tập chung chương 1 là lời giải Vở bài tập Toán lớp 5 tập 1 trang 39, 40 có đáp án và lời giải chi tiết giúp các em học sinh ôn tập, hệ thống lại toàn bộ kiến thức Chương 1.
>> Bài trước: Giải vở bài tập Toán 5 bài 28: Luyện tập
Vở bài tập toán lớp 5 bài 29
Toán lớp 5 bài 29 là Hướng dẫn giải vở bài tập toán lớp 5 bài 29 trang 38, 39, 40. Lời giải bao gồm 4 câu hỏi có đáp án chi tiết cho từng câu để các em học sinh so sánh đối chiếu với bài làm của mình. Các bậc Phụ huynh cùng tham khảo hướng dẫn con em học tập ôn luyện, củng cố tại nhà.
Vở bài tập Toán lớp 5 tập 1 trang 38 Câu 1
Người ta lát sàn một căn phòng hình vuông có cạnh 8m bằng những mảnh gỗ hình chữ nhật có chiều dài 80cm, chiều rộng 20cm. Hỏi cần bao nhiêu mảnh gỗ để lát kín căn phòng đó?
Phương pháp giải
- Tính diện tích căn phòng = cạnh × cạnh.
- Tính diện tích mảnh gỗ = chiều dài × chiều rộng.
- Tính số mảnh gỗ cần dùng = diện tích căn phòng : diện tích mảnh gỗ (cùng một đơn vị đo).
Đáp án và hướng dẫn giải
Diện tích căn phòng là:
8 x 8 = 64 (m2)
64m2 = 640 000 cm2
Diện tích một mảnh gỗ
80 x 20 = 1600 (cm2)
Số mảnh gỗ dùng để lát sàn căn phòng đó là:
640 000 : 1600 = 400 (mảnh)
Đáp số: 400 mảnh gỗ
Vở bài tập Toán lớp 5 tập 1 trang 39 Câu 2
Người ta trồng mía trên môt khu đất hình chữ nhật có chiều rộng 130m, chiều dài hơn chiều rộng 70m.
a) Tính diện tích khu đất đó
b) Biết rằng, trung bình cứ 100m2 thu hoạch được 300kg mía. Hỏi trên cả khu đất đó người ta thu hoạch được bao nhiêu tấn mía?
Phương pháp giải
- Tính chiều dài = chiều rộng + 130m.
- Tính diện tích = chiều dài × chiều rộng.
- Tính diện tích gấp 100m2 bao nhiêu lần.
- Tính số thóc thu được = 300kg × số lần diện tích gấp 100m2.
- Đổi số đo vừa tìm được sang đơn vị đo là tấn, lưu ý rằng 1 tấn = 1000kg.
Đáp án và hướng dẫn giải
a) Chiều dài khu đất là:
130 + 70 = 200 (m)
Diện tích khu đất là:
200 x 130 = 26 000 (m2)
b) 100m2 thu hoạch được 300kg mía
Vậy 26000m2 thì thu hoạch được số ki-lô-gam mía trên khu đất đó:
\(\frac{26000\times30}{100}\)= 78000(kg)
78 000kg = 78 tấn
Đáp số: a) 26 000 m2
b) 78 tấn mía
Vở bài tập Toán lớp 5 tập 1 trang 39 Câu 3
Một sân vận động hình chữ nhật được vẽ theo tỉ lệ và kích thước như hình bên.
Hỏi diện tích sân vận động đó bằng bao nhiêu mét vuông?

Phương pháp giải
- Tính chiều dài thực tế = chiều dài trên bản đồ × 3000, sau đó đổi sang đơn vị mét.
- Tính chiều rộng thực tế = chiều rộng trên bản đồ × 3000, sau đó đổi sang đơn vị mét.
- Diện tích thực tế = chiều dài thực tế × chiều rộng thực tế.
Đáp án và hướng dẫn giải
Chiều dài sân vận động là:
6 x 3000 = 18 000 (cm) = 180m
Chiều rộng sân vận động là:
3 x 3000 = 9000 (cm) = 90m
Diện tích sân vận động là:
180 x 90 = 16200 (m2)
Đáp số: 16200 m2
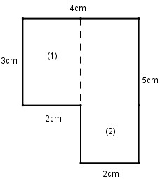
Vở bài tập Toán lớp 5 tập 1 trang 40 Câu 4
Khoanh vào chữ đặt trước câu trả lời đúng.

Diện tích hình bên là:
A. 20cm2
B. 12cm2
C. 16cm2
D. 10cm2
Phương pháp giải
Chia hình đã cho thành các hình chữ nhật hoặc hình vuông rồi tính diện tích các hình đó.
Diện tích hình đã cho bằng tổng diện tích các hình nhỏ.
Đáp án và hướng dẫn giải
Ta có thể chia thành các hình nhỏ như sau:
Cách 1:

Diện tích hình vẽ = Diện tích hình (1) + diện tích hình (2) = 4 x 3 + 2 x 2 = 16cm2
Cách 2:

Diện tích hình vẽ = Diện tích hình (1) + diện tích hình (2) = 3 x 2 + 5 x 2 = 16cm2
Cách 3:

Diện tích hình vẽ = Diện tích hình (1) + diện tích hình (2) + diện tích hình 3 = 3 x 2 + 3 x 2 + 2 x 2 = 16cm2
Vậy khoanh tròn vào câu trả lời đúng C.
>> Bài tiếp theo: Vở bài tập Toán lớp 5 bài 30: Luyện tập chung chương 1
Trắc nghiệm Luyện tập chung Chương 1 Toán 5
Cùng luyện tập các dạng bài tập trắc nghiệm Chương 1 dưới đây để giúp các em học sinh ôn tập các dạng Toán về phân số, nâng cao kỹ năng giải Toán 5:
- Bài tập trắc nghiệm Toán 5 chương 1 - Đề 1
- Bài tập trắc nghiệm Toán 5 chương 1 - Đề 2
- Bài tập trắc nghiệm Toán 5 chương 1 - Đề 3
- 60 câu Trắc nghiệm Toán lớp 5 Chương 1
Bài tập Luyện tập chung Chương 1 Toán 5
Luyện thêm các Bài tập Ôn tập chương 1 Toán lớp 5 có lời giải để củng cố chắc kiến thức đã được học nhé:
- Toán lớp 5 trang 31, 32: Luyện tập chung chương 1
- Vở bài tập Toán lớp 5 bài 31: Luyện tập chung chương 1
Chuyên mục Toán lớp 5 có lời giải đầy đủ cho từng bài học SGK cũng như VBT trong năm học. Tất cả các tài liệu tại đây đều được tải miễn phí về sử dụng. Các em học sinh có thể lựa chọn lời giải phù hợp cho từng bộ sách trong chương trình học.
| Đặt câu hỏi về học tập, giáo dục, giải bài tập của bạn tại chuyên mục Hỏi đáp của VnDoc | |
| Hỏi - Đáp | Truy cập ngay: Hỏi - Đáp học tập |
Các tài liệu câu hỏi tại đây trả lời nhanh chóng, chính xác!
Giải vở bài tập Toán 5 bài 29: Luyện tập chung chương 1 bao gồm 4 câu hỏi có phương pháp giải và lời giải chi tiết cho từng dạng bài tập cho các em học sinh tham khảo, nắm được cách giải các dạng Toán về dộ dài, khối lượng nắm được bảng đơn vị đo khối lượng, độ dài để giải các bài toán quy đổi khối lượng, độ dài, các dạng toán có lời văn, hệ thống lại các kiến thức Toán 5 chương 1. Hi vọng với những tài liệu này, các em học sinh sẽ học tốt môn Toán lớp 5 hơn mà không cần sách giải.
Ngoài ra, các em học sinh lớp 5 còn có thể tham khảo đề thi học kì 1 lớp 5 hay đề thi học kì 2 lớp 5 các môn học Toán, Tiếng Việt, Tiếng Anh, Khoa học, Sử, Địa mà VnDoc.com đã sưu tầm và chọn lọc. Những đề thi này được sưu tầm và chọn lọc từ các trường tiểu học trên cả nước nhằm mang lại cho học sinh lớp 5 những đề ôn thi học kì chất lượng nhất. Mời các em cùng quý phụ huynh tải miễn phí đề thi về và ôn luyện.
Tham khảo chi tiết các dạng bài tập Toán lớp 5 khác: